Dein Raum in der Altstadt von Winterthur.

ab März 2026

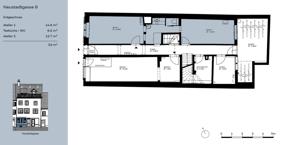
Wir vermieten zwei Praxisräume.

In der wunderschönen Neustadtgasse in der Altstadt von Winterhur vermieten wir gepflegte Praxisräume.

Die Räume sind für Beratungen und Bewegungstherapie in Kleingruppen liebevoll eingerichtet.

Inklusive "Der Raum dazwischen" mit Kochnische und WC.

Verfügbarkeiten auf Anfrage.

Mietpreise

Zeitfenster Montag bis Freitag. Preis pro Monat. Preis
06:00 bis 08:15 40.- CHF
08:30 bis 11:45 90.- CHF
12:00 bis 13:45 50.- CHF
14:00 bis 18:30 115.- CHF
18:45 bis 22:00 120.- CHF
Zeitfenster Samstag & Sonntag. Preis pro Zeitfenster. Preis
06:00 bis 08:15 15.- CHF
08:30 bis 18:30 220.- CHF
18:45 bis 22:00 60.- CHF
ganzes Wochenende 400.- CHF

2Raumpraxis

Neustadtgasse 8, 8400 Winterthur, Schweiz

info@2raumpraxis.ch

+41 79 531 77 78